海辺のリゾート感と快適な暮らしが両立する「グレーシア湘南平塚海岸」
グレーシア湘南平塚海岸
※当サイトのコンテンツにはプロモーションが含まれています。
今回の"いいとこ"研究対象物件
- 物件名
- グレーシア湘南平塚海岸
- 所在地
- 神奈川県平塚市龍城ケ丘17-40
- 物件タイプ
- 中古マンション
- 取扱不動産会社
- 株式会社 シティライフ
この物件の”いいとこ”リスト
- 海辺のリゾート感と暮らしやすさを両立した立地
- 陽当たりの良い東向きバルコニーと、自由度の高い間取り設計
- リフォーム済で安心&収納もたっぷり
- 共用設備も充実 快適と安心を支える暮らし
こんな方にオススメの物件です!
- スッキリしたインテリアを目指す!収納重視の方
- 新築でなくてもいいけど、綺麗な室内がいい……リフォーム物件をお求めの方
- ペットは家族!ペット可物件をお探しの方
- 海が好きでリゾート感のある暮らしをしたい方
- 在宅ワークも快適にしたいテレワーカーの方
あてはまる方は、物件概要ページもチェック!
グレーシア湘南平塚海岸の物件概要を見る
[本物件は成約致しました]
クリックタップで物件の詳細ページを開きます。
30代の夫婦2人暮らし。
どちらもリモートワーク中心で、仕事の合間に海辺を散歩できるような環境を希望。
休日は自然の中でリラックスできる住まいを探している。
目次
海辺のリゾート感と暮らしやすさを両立した立地
今回の”いいとこ”研究物件は、神奈川県平塚市の「グレーシア湘南平塚海岸」です。
その名の通り、海に近いリゾート感のあるマンションで、「海辺の公園ひらつかシーテラス」まで徒歩5分という立地です。
潮風を感じながら散歩やジョギングを楽しめるのが”いいとこ”ポイントですねえ。
おお~、海のそばなんですね!
日常の中にリゾートっぽさを感じられるのはいいですね~。
でも、海沿いってちょっと生活面が不便なイメージもあるんですが……。
そこはご安心を。
徒歩5分圏内にコンビニやドラッグストアがあり、徒歩10分圏内には食料品店や衣料品店もそろっています。
生活利便性とリゾート感を両立した立地なんですよ。
それはいいですね!
日常の買い物にも困らないなら、海沿いの暮らしがぐっと現実的になりますね~。
さらに、こちらはペット可マンションでもあります。
犬の散歩で海沿いを散策するという暮らしも楽しめますねえ。
ペットが飼える環境は嬉しいですね~。
犬と一緒に海岸を走るなんて、リゾート感たっぷりで素敵だな~。
陽当たりの良い東向きバルコニーと、自由度の高い間取り設計
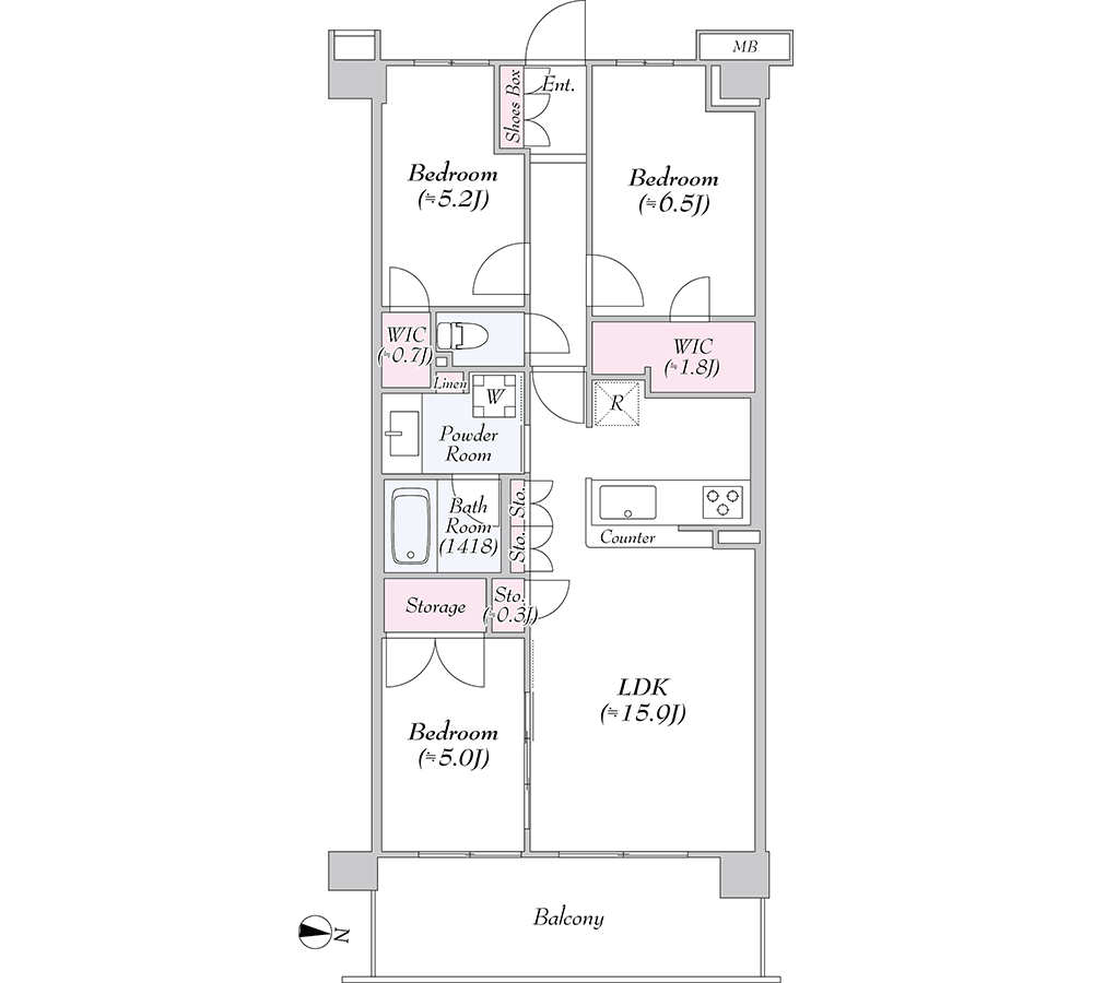
建物の”いいとこ”ポイントとしては、東向きのバルコニーと可変性のある間取りが挙げられます。
バルコニーに面したLDKと隣接する洋室は引き戸でつながっており、引き戸をフルオープンにすると広々とした空間として使えるんですよ。
基本は3LDKですが、2LDKのようにリビングを広く使うことも可能です。
なるほど、ライフスタイルに合わせて空間を変えられるのはいいですね~。
仕事部屋とリビングを仕切るか、つなげて広々と使うか、気分で選べそうです。

そうなんです。
朝はバルコニーからの陽光がリビング全体に差し込み、日中も明るく開放的に過ごせます。
東向きなので、強い西日を避けつつ気持ちの良い日当たりを確保できるのも”いいとこ”ポイントですねえ。
朝の光で自然に目が覚める生活、理想的です!
植物を育てるのにも良さそうですね。
リフォーム済で安心&収納もたっぷり
こちらは令和7年6月にリフォームを実施しています。取扱不動産会社様による「wellnessシリーズ」というブランドとなっていて、こだわりのリフォームで室内がとても綺麗な状態になっているというところも”いいとこ”ポイントのひとつです。
クロスの貼り替えやダウンライト施工、ガスコンロとキッチン水栓の交換、LDKのエアコン新設など、見た目も機能もリフレッシュされています。
詳しいリフォーム内容は、こちらでご確認いただけます。
















新築みたいにピカピカですね!
設備が新しいと安心して住み始められますね~。
リフォーム済物件は、内装や設備などが新しくなっているのが、大きな”いいとこ”ポイントのひとつ。
リフォームの工事費用が物件価格に含まれるため、自分でリフォームする場合と比較して、資金計画がシンプルになるというのもメリットです。
さらに、大規模なリフォームやハウスクリーニングが実施されている場合は、室内が綺麗になっていて入居前に大掃除する必要がないというのもメリットです。
リフォーム済物件のメリットやデメリットを【張替由佳の不動産研究】にて解説しています
加えて、全居室に収納があり、リビングにも収納を設けています。
さらにウォークインクローゼットが2か所あるのも特徴です。
収納家具を増やさなくても、季節ものや趣味の道具までスッキリ収まるというのは嬉しいですよね。
ウォークインクローゼットが2つも!
それなら夫婦で分けて使えますね。
洋服好きにはたまらない~。
共用設備も充実 快適と安心を支える暮らし
こちらのマンションは、共用設備がとても充実しています。
Wi-Fi完備のカームラウンジは、リモートワークや勉強スペースにも活用できます。
また、オーシャンビューテラスからは海や街を一望できるだけでなく富士山も眺められて、暮らしの中に非日常を感じられますよ。




共用スペースも素敵ですね~!
ラウンジで仕事して、休憩にテラスで海を眺める……理想的な働き方です!
さらに、建物の安心面も”いいとこ”ポイントです。
警備会社ALSOKによる24時間セキュリティシステムに加え、建物全体で水を浄化する「良水工房」の設備を導入。
構造面では、三世代に渡る耐久性を目指す「劣化対策等級3(最高等級)」を取得しています。
設備も安心も整っているんですね~。
共用施設の豪華さだけでなく、暮らしの基盤もちゃんとしているのがいいなあ。
まさにその通りです。
リゾートのようなくつろぎと、安心感ある暮らしの両立ができるのが「グレーシア湘南平塚海岸」の大きな魅力ですねえ。
住まいを選ぶときは、理想の生活スタイルをしっかり思い描くことが大切です。
毎日のリズムに寄り添う立地か、将来のライフステージの変化にも対応できるか。
そうした視点で”いいとこ”ポイントを見極めていくと、自分らしい住まいに出会いやすくなりますよ。
こんな方にオススメの物件です!
- スッキリしたインテリアを目指す!収納重視の方
- 新築でなくてもいいけど、綺麗な室内がいい……リフォーム物件をお求めの方
- ペットは家族!ペット可物件をお探しの方
- 海が好きでリゾート感のある暮らしをしたい方
- 在宅ワークも快適にしたいテレワーカーの方
あてはまる方は、物件概要ページもチェック!
グレーシア湘南平塚海岸の物件概要を見る
[本物件は成約致しました]
クリックタップで物件の詳細ページを開きます。
間取図制作:株式会社システムエイト
投稿日:






